不锈钢犁刀混合机

不锈钢犁刀混合机适用范围
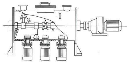
不锈钢犁刀混合机工作原理
不锈钢犁刀混合机介绍

四川成都IM官方版 机械不锈钢犁刀混合机
工作原理:
不锈钢犁刀混合机内部采用曲面式刀面的犁刀,在每次转动的作用下,物料被犁刀双向刀面分成两个方向的螺旋形物料流,并与附近的犁刀作用的物料相结合,反复的且多轨迹的作用效果保证了连续式的生产方式下的混合物料的均匀性。
1、连续式生产混合物料必须依靠连续且按比例速度的给进原料,由此需结合自动化的连续给料系统配套使用。 
2、混合机上进料口与出料口对称开设,进料、出料需由喂料器控制。
应用范围:
犁刀混合机主要应用在干粉砂浆、干粉砂浆、干混砂浆、预拌砂浆、建筑砂浆、防水材料、涂料、电池 、电子元件、化工、医药食品、饲料、外加剂等行业的固-固(粉体对粉体或颗粒)、固-液(粉体喷洒液体)的高精度混合、加热混 合和湿造粒

结构形式:
犁刀混合机设备结构主要由传动部分、卧式筒体、犁刀组轴、飞刀组、出料阀、喷液装置等组成,卧式筒体内的犁刀随主轴旋转使物料沿筒臂作径向圆周湍动,同时径向物料沿线流经飞刀组,被高速旋转的飞刀抛散,不断更迭、复合使,物料在较短的时间达到混合均匀;传动部分包括带电机摆线针轮减速机、联轴器,主要把电机的运动变为需要的速度和扭矩传给复杂刀轴
技术参数:
| 型号-规格 (m³) | WSD-0.5 | WSD-1 | WSD-2 | WSD-3 | WSD-4 | WSD-6 | WSD-8 | WSD-10 | WSD-12 | |
| 装载系数 | 0.4~0.6 | |||||||||
| 批次最大产量(㎏) | 300 | 600 | 1200 | 1800 | 2400 | 3600 | 4800 | 6000 | 7200 | |
| 混合时间 | 5~12 | |||||||||
| 电机功率(KW) | 5.5 | 11 | 18.5 | 22 | 30 | 37 | 45 | 55 | 55 | |
| 主轴转速 r/min | 62 | 50 | 42 | 33 | 33 | 22 | 22 | 16 | 16 | |
| 外形尺寸mm | 长 | 2680 | 3160 | 3865 | 4165 | 4678 | 5190 | 5360 | 5880 | 6140 |
| 宽 | 1037 | 1330 | 1404 | 1504 | 1570 | 2105 | 2310 | 2310 | 2460 | |
| 高 | 1150 | 1166 | 1637 | 1737 | 2040 | 2360 | 2540 | 2540 | 2690 | |
| 设备重量 (Kg) | 980 | 1550 | 2100 | 3050 | 3800 | 5500 | 7000 | 9250 | 10500 | |
性能与技术特征: 材质标准: 功能配置:
订购需知:
·容积: 100-8000 升
·驱动:3 kW - 75 kW
·犁刀搅拌器可更换式
·产量可调节结构
·连续式给进出料式
·可配置重型结构
设备开口:
·开设标准法兰式接口
·人工快开加料口
·排气口
·筒身清理快开门
·碳钢材质
·与物料接触为304不锈钢
·全部筒体为304不锈钢
·与物料接触为316L不锈钢
·全部筒体为316L不锈钢
·其它特种材料制作
·防腐材料内衬
·耐磨损材料涂层
·功能性材料覆层
·加热/冷却功能夹套
·匹配物料的密封装置
·加液/喷雾功能装置
·飞刀破碎功能装置
·除尘净化功能装置
·在线取样功能装置
·驱动控制形式匹配
容积:200-12000L;
材质:不锈钢或碳钢;
外形:圆形或U型;
加热方式:电加热、蒸汽加热;
喷雾装置:订购时需告知;
犁刀混合机 作为干粉砂浆设备中的常用设备之一,在高粘度物料混合时起到重要的作用。
不锈钢犁刀混合机选型示例

当前位置:
更新中,暂停下载!